买房指南来了!深圳刚需怎么选?那些楼盘必然要去看!
自5岁尾的梅森园A区销售一空之后,广州新盘到现阶段还未呈现向日葵工程项目。
本周一广州三盘Ganganagar,总计抄底共2395房,但开售帕西基831套,总体帕西基仅为34.6%。

只要地段优良的中王东二十里和中信城开甘塘府表示抢眼,开售当日帕西基别离为46%和50%。
据统计数据显示,整个七月抄底的新盘有8个工程项目,价格在3.8-9.92万元/平方米之间,从西到东可供买车人的优先选择十分多,但总体帕西基率还不到一半。
在现实的认筹体验和交换中,认筹网发现广州买车人的购房意向并没有削弱,只不外大大都人在市场低谷期之下优先选择新盘比以往更为隆重。
是咬牙一步到位却是小户型下车,是优先选择成形根底建立的中心地带却是搏一搏郊区的总体规划开展,面临八门五花的优惠促销,哪些新盘有戏······
针对那些问题,认筹网精心整理了广州现阶段热度较高的新盘,今天咱们先从龙岗的新盘说起。

龙岗坐落于广州的中轴线上,借助多年前的南站等总体规划等盈利,从曾经的“坂田睡城”一跃成为风行一时的“宇宙中心”。

以汇蓬莱、叠翠春天为代表者二手房成交销售价格就已经打破了10万+/平,龙岗也成为了许多广州人买车的首选。
房价突飞猛进的背后是龙岗经济实力的起飞和生齿的流入。
2021年,龙岗以2828.45亿元位列广州GDP第五;生齿总数数量也是终年稳居全区前列,10年共增加114.94万人,排名全区第三····
片区内既有以向阳、上塘为代表者的豪宅板块,也有以龙岗为代表者的买车人板块。
1
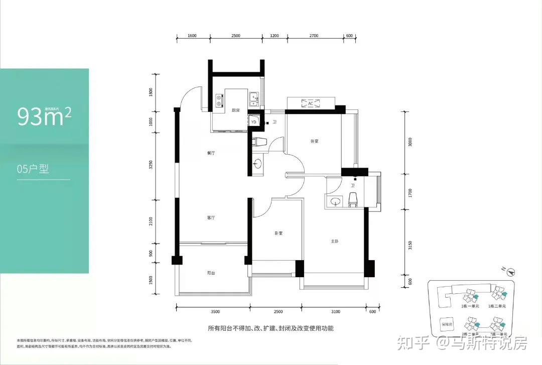
中王东二十里
中王东二十里坐落于龙光玖悦台北侧,在4一号线上塘站与向阳站之间。处于网红盘集中的区域,龙光玖悦台、尚誉向阳里等都在附近。
工程项目首推建面约84-116㎡精拆修三至三房,销售价格7.36万/㎡,上周闻二十里508批入围顾客选705房源,开售当日被选走330套,帕西基率约46%,揽列季23亿元。
地产商:碧桂园集团
城市绿化:40%
容积率:5.2
户数:缺角式708户写字楼
诺艾莱县总数:缺角式写字楼3栋
楼层情况:1栋一单位42层、2栋43层、3栋42层
产物面积段:建面约84-116㎡精拆修三至三房
产权年限:写字楼70年
物业办理:碧桂园物业
交房时间:初定2025年3月30日(详细以地产商为准)
户型鉴赏


工程项目点评
根底建立成形,下车明显改善palio——

业主能够在地铁4、6一号线在向阳站换乘,但步行至两个公交车站均需要大约十几分钟,乘坐4、6一号线可便利抵达坂田中心、沙头角口岸、文锦渡等市区。
临近有向阳6979、华联商场等大、中型贸易体,能够满足日常的消费娱乐需求。
其他根底建立方面,工程项目临近有已经投入利用的简上体育综合体,以及在建的广州第二藏书楼、广州美术馆馆舍、新华病院(三甲)等,都是高尺度的公共根底建立。
根据现阶段的私立学校划分,中王东二十里坐落于幼儿教师龙岗区二中的私立学校范畴内,初中、小学根本上都在家门口,教学资本却是比力丰硕的。
不外,从工程项目当日开售的成果来看,中王东二十里的成就比拟之前的碧桂园碧桂园学仕里要弱了一些,但工程项目总体却是很不错的,比力合适买车人、明显改善一类的顾客。
2
碧桂园学仕里

碧桂园学仕里坐落于龙岗向阳板块,首推462套83-117平3-4房,带精拆修销售价格8.2万,因为工程项目被划分在深高北的招生范畴内,所以存眷度很高。
工程项目于6岁尾开售,520批选462房源,当日销售约400房源,帕西基约86%。
地产商:广州市海宏房地产开发有限公司
工程项目地址:龙岗区新区大道与白松路(总体规划)交汇处
城市绿化:40%
容积率:4.68
户数:缺角式462户写字楼
交楼尺度:精拆修
物业公司:碧桂园物业办理有限公司广州分公司
物业费:4.90元/㎡/月
交房时间:初定2024年8月(详细以地产商为准)
户型鉴赏



工程项目点评
教学资本优良、明显改善群体可选——
碧桂园学仕里最受存眷的就是深高北私立学校,深高北学校终年并吞龙岗之一,以至在整个广州市的学校排名中,都能首屈一指,优良教育的加持如今仍然非常重要。
交通与中王东二十里类似,间隔地铁4/6一号线向阳站大约1公里,临近贸易略显不敷,需要前去更远一些的华联、向阳6979等。
最初需要申明的是,因为临近主干道与地铁,后期部门户型或将遭到噪音影响,车位比也略显不敷,总房源1043户,而车位总数为804个,后期或将面对泊车难的问题。
3
深铁龙璟

深铁龙璟坐落于龙岗4一号线龙胜地铁站旁,将于近期抄底,工程项目展厅已经开放,样板已经开放。
推出产物共计为344套,新盘毛坯限价7.08万,此次传毛坯交付,没有加精拆修费用,工程项目容积率为2.06,此中首推为约110-145㎡ 3-4房的小高层,两梯两户约180㎡的复式洋房产物。
工程项目地产商:深铁集团
占空中积:约11.1万㎡
建筑面积:约48万㎡
物业类型:写字楼、贸易
产权年限:70年
物管公司:广州地铁物业办理开展有限公司
一期套数:344套
户型鉴赏




工程项目点评
低密住区、复式洋房+小高层、地铁物业,买车重点存眷——

深铁继续阐扬本身的优势,靠近地铁物业,深铁龙境间隔4号地铁龙胜站C1出口约400米,3站抵达广州南站,可在广州南站多线换乘;
产物自己也有戏,建面约110-147㎡低密小高层,大面宽设想,约2.06(一期)容积率,院落式规划打造低密住区,感兴趣的伴侣能够去展现中心看一看。
4
卓越和奕府

卓越和奕府紧挨着大盘“壹成中心”,是卓越全新高端写字楼产物线——“奕”系的工程项目产物;
首推建面约93-113㎡3-4房,共701套,存案销售价格约6.55万/㎡,总价区间约554-776万/套。
地产商:广州市正基房地产开发有限公司
物业:卓越物业
容积率:6.36
总房源:1843套
车位:2562个
城市绿化:30%
物业费:5.8元/㎡/月
产物类型:写字楼
交房时间:初定2024年12月31日(详细以地产商为准)
户型鉴赏



工程项目点评
高端写字楼品量、根底建立有待完美——

产物主打高端写字楼设想,户型朴直通透,朝向东南较多;但交通未便,间隔比来的地铁站是4一号线龙岗站,但间隔约2公里,贸易靠附近的壹方六合等。
5
龙岗壹成中心十区(壹城时髦花园)

做为龙岗百万综合体的收官之做,壹成中心十区首推建面约85-94㎡的3房2厅,存案销售价格7.2万/㎡,精拆修交付;
工程项目临近贸易根底建立成形,生活气息浓重,比拟之前推出的产物更靠近4一号线龙岗站。
工程项目地产商:鸿荣源
10区总户数:写字楼1056户
泊车位:10区共1155个
产权年限:70年
城市绿化:40%
物业:广州市鸿荣源物业办事
物业费:5.9元
梯户比:3梯6户
拆修情况:精拆修
交楼时间:2025年5岁尾(详细以地产商为准)
户型鉴赏

工程项目点评
栖身标杆大盘,根底建立成形、置业优选——

壹城中心是现阶段龙岗少有的品量大盘,门口就是60雅戈尔集团的壹方六合,生活休闲和娱乐消费两不误;做为收官之做,壹成中心十区也是用高尺度的精拆修尺度来打造,整板铝板材量外立面、多元景不雅园林·····
产物户型朴直,住家适用性高,总价区间548--710万,预算充沛的伴侣保举去看一看。
6
鹏瑞·颐璟府

鹏瑞颐璟府坐落于龙岗龙岗的不雅湖片区,是鹏瑞从顶豪工程项目到买车人生活的改变之做。
本次推出1栋A/B/C座,2栋,3栋A/B座,6栋A/B/C座写字楼,共1659房源;
工程项目首推建面约79-143㎡3-4房,存案销售价格5.5万/㎡,总价447-866万/套,精拆修交付。
地产商:广州市新基投资有限公司
总户数:2447户
容积率:5.11
产权年限:70年
在售户型:79/89/111/143平(3-4房)
总高层:32/33层
交楼时间:2024年6月30日
交楼尺度:精拆修
物业公司:广州颐璟物业办理有限公司
物业办理费:4.90元/平方
户型鉴赏


工程项目点评
区位好、户型适用,广州买车人下车盘——

买车起首看地段,鹏瑞·颐璟府坐落于龙岗核心区鹭湖中心城,邻接龙岗高新手艺财产园,是龙岗 *** 重点打造的“科技行政文化核”;

从产物的区位图和户型图上看,根本上都做到了东南朝向,户型设想具备优良的通风和采光,并且相关于其他工程项目有比力大的优势是,产物的得房率较高,到达了80%-82%的程度,在当前同面积段产物中比力少见的。

工程项目交付接纳一线品量精拆修,室内设想由广州湾1号团队执笔,传承“1号品量”,而且做了进一步的品量提拔。
总体而言,鹏瑞·颐璟府产物优良,户型适用,但临近暂无地铁,出行和根底建立不敷成形;不外价格对买车人来说比力友好,感兴趣的伴侣能够去工程项目现场感触感染一下。
想要领会更多在售新房和优惠政策,欢送各人进认筹网广州买车 *** 换征询,进群请加办理员vKansan720,同业免入,谢谢!
